PISO EN COVAS VIVEIRO.
Viveiro (Lugo) 72.000€
Pisos
Para entrar a vivir
Antigüedad: 1982
M2 Útiles: 107
Dormit: 4
Baños: 2
M2 Construidos: 120m2
Salón: 25m2
Cocina: 20m2
Trastero: Si
C. Energética: D
Descripción
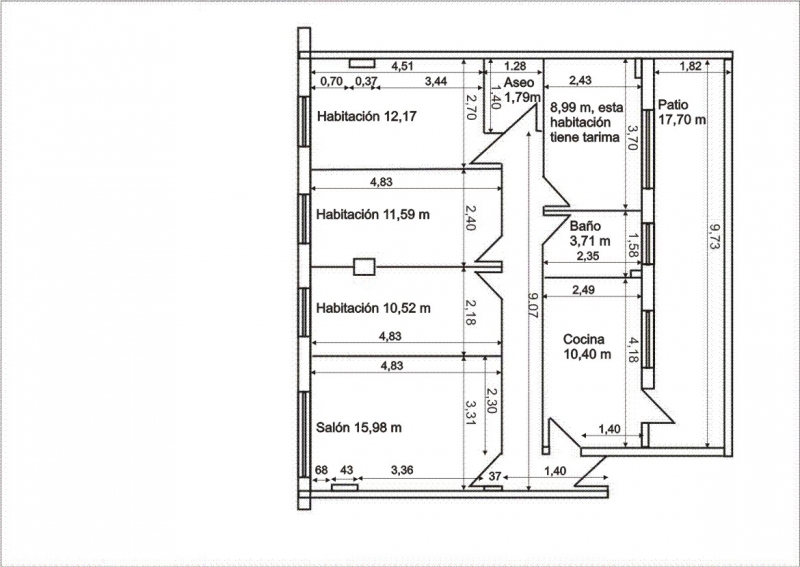
Piso en Covas Viveiro, 107 m, 4 habitaciones grandes, salon y cocina amplios, patio de 17 m, 1 aseo, 1 cuarto de baño completo, Suelos de tarima recien puestos, tiene ascensor y trastero grandecito. Gastos de comunidad 50 euros mensuales (está incluida el agua que se consuma en la vivienda). Esta situado a 150 m reales de la playa de Covas. Posibilidad de subrogacion en una hipoteca de 390 euros mensuales.
Características y equipamiento
Amueblado
Ascensor
Puerta normal
Orientación de mañana
Patio
Operaciones disponibles
- Venta
